Descrizione
ESCLUSIVA TECNOCARPI. ZONA ARTIGIANALE DI ROVERETO CAPANNONE DI 530 MQ c.a. CON APPARTAMENTO.
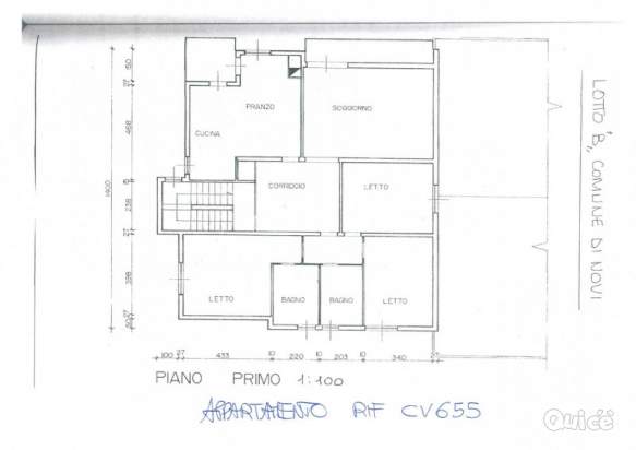
IL CAPANNONE HA TRE INGRESSI TRAMITE PORTONI E DUE PEDONALI. ALLO STATO ATTUALE UNA PARTE DI 440 MQ c.a. E' ADIBITA A LABORATORIO CON DOPPI SERVIZI E UNA PARTE DI 90 MQ c.a. ADIBITA AD UFFICI CON BAGNO. I PORTONI HANNO H DI 3,5 MT E LARGHEZZA DI 3 MT. ALTEZZA SOTTO TRAVE 3,5 MT, AL COLMO DA 4,60 MT. DOTATO DI VARIE CALATE CON PRESE 220/380. ALL'ESTERNO AMPIA AREA CORTILIVA PER POSTI AUTO. L'APPARTAMENTO MOLTO SPAZIOSO (SUI 180 MQ c.a.) E' COMPOSTO DA: INGRESSO AL PIANO TERRA IN AMPIO ANDRONE CON ACCESSO AL GARAGE DI 20 MQ c.a. E SCALA CHE PORTA AL PIANO PRIMO CON AMPIO INGRESSO, GRANDE CUCINA CON TERRAZZO, SALONE, DISIMPEGNO NOTTE, BAGNO, TRE MATRIMONIALI DI CUI UNA DOTATA DI SECONDO BAGNO PRIVATO. ALL'ESTERNO AREA CORTILIVA RECINTATA DI OLTRE 200 MQ SU DUE LATI. CONDIZIONI GENERALI USATE.. --- annuncio pubblicato con GESTIONALEIMMOBILIARE.it
Dettagli
- Inserito:
- 1 mar 10:45
- Inserzionista:
- azienda/associazione
- Tipo annuncio:
- vendo
- Tipo merce:
- usato
- Categoria:
- Casa e Terreni
- Comune:
- Novi di Modena (MO)
- Superficie:
- 530
- Locali:
- 5
- Tipo:
- Capannone
- Classe Energetica:
- G
