Descrizione
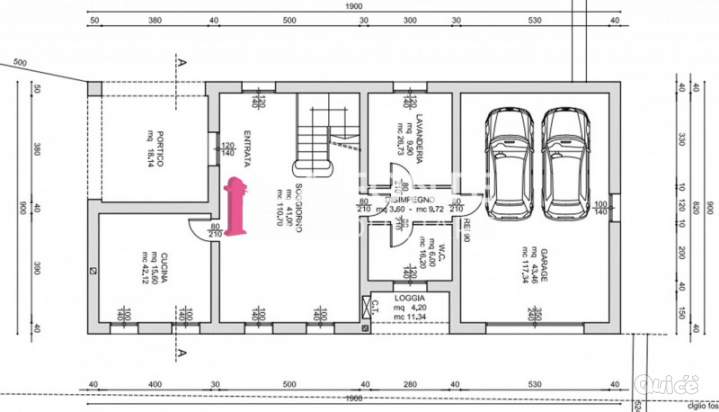
VIGONZA - VIA PRATI - Proponiamo in vendita un TERRENO EDIFICABILE residenziale situato nella tranquilla zona semi-rurale. Il lotto ha una superficie di circa 750 mq con la possibilità di costruire fino a 800 metri cubi, consentendo la realizzazione di una casa singola o anche una bifamiliare. La progettazione e gli oneri sono da quantificare ma offre ampie opportunità per creare la dimora dei propri sogni. Vigonza è nota per la sua qualità della vita e il contesto naturale circostante, offrendo un ambiente ideale per chi desidera vivere lontano dal caos cittadino pur rimanendo ben collegato ai servizi essenziali. Invitiamo i potenziali acquirenti ad organizzare una visita sul posto contattando l'agenzia, qui di seguito una bozza di progetto. --- annuncio pubblicato con GESTIONALEIMMOBILIARE.it
Dettagli
- Inserito:
- 10 ott 12:21
- Inserzionista:
- azienda/associazione
- Tipo annuncio:
- vendo
- Tipo merce:
- usato
- Categoria:
- Casa e Terreni
- Comune:
- Vigonza (PD)
- Superficie:
- 750
