Descrizione
Si propone in vendita porzione di trifamiliare in località Cà Oddo.
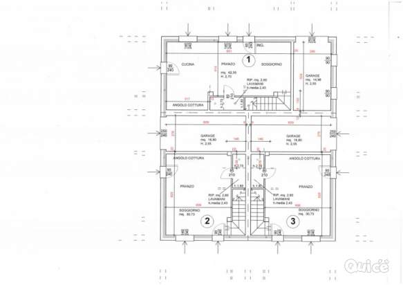
Disposte da un piano terra con ingresso zona giorno con cucina (unico vano) bagno/lavanderia e garage.
Al piano primo le tre camere da letto, bagno.
- Consegna a breve
- Costruite con le ultime tecnologie per un massimo risparmio energetico
- Giardino su due lati
Per maggiori informazioni contattare l'Agenzia Immobiliare LA BASE con sede a este (Padova) in via Cavour, 79 telefono 0429 3678 o direttamente al cellulare di Pulze Geom. Gianni 339 8818859 --- annuncio pubblicato con GESTIONALEIMMOBILIARE.it
Dettagli
- Inserito:
- 29 apr 21:45
- Inserzionista:
- azienda/associazione
- Tipo annuncio:
- vendo
- Tipo merce:
- nuovo
- Categoria:
- Casa e Terreni
- Comune:
- Monselice (PD)
- Superficie:
- 150
- Locali:
- 3
- Bagni:
- 2
- Classe Energetica:
- A4
