Descrizione
Proponiamo in vendita, un elegante e signorile appartamento a 2 Camere da letto, al piano Terra con ingresso indipendente e giardino privato, facente parte di un piccolo fabbricato di sole 7 unità abitative.
Il Fabbricato, a due piani fuori terra (terra e primo) è stato costruito nel 2001.
La zona è molto ben servita da negozi di ogni genere, banche, Ufficio Postale, scuola materna, scuola primaria, parrocchia di Merlengo, Farmacia, Supermercato Conad, ed è al contempo molto silenziosa e tranquilla.
La proprietà che proponiamo in vendita ha una superficie commerciale di Mq 130,00 ed è cosi composta:
Piano interrato: Cantina-Lavanderia-Magazzino Mq 50,60
Piano interrato: Garage Mq 24,00
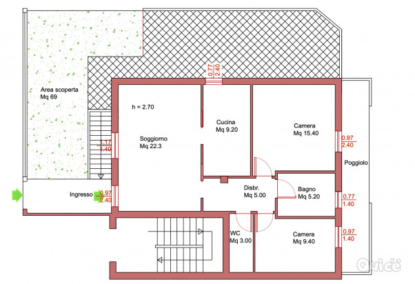
Piano terra: Area scoperta Mq 69,00
Piano terra: terrazza Mq 9,00
Piano terra: Appartamento Mq 83,00
L'appartamento ha tre lati liberi ed ha la seguente esposizione: Est - Sud - Ovest;
L'appartamento con ingresso indipendente che proponiamo in vendita è così composto:
Al piano terra:
- Luminoso Soggiorno esposto a Est;
- Cucina Abitabile esposta a Sud con affaccio sull'area scoperta;
- Disbrigo;
- 2 Camere da letto di cui una Matrimoniale ed una Singola entrante esposte a Ovest;
- Bagno finestra con vasca da bagno;
- Bagno cieco dotato di aerazione forzata;
- Area scoperta di Mq 69;
- Terrazza prospiciente le camere da letto di circa Mq 9,00;
Al piano interrato al quale si accede a mezzo di una scala posta nell'area scoperta troviamo:
- Cantina di circa Mq 20,00;
- Lavanderia;
- Magazzino;
- Garage doppio atto a parcare 2 auto affiancate di circa Mq 24,00.
Gli ambienti interni presentano finiture di buona qualità;
- Pavimento in gres porcellanato, pregiato, nel soggiorno, cucina e disimpegno;
- Pavimento nelle camere da letto in legno massello lamparquette essenza Iroco - levigato e verniciato a nuovo;
- Pavimento e rivestimento dei Bagni in ceramiche pregiate;
- Serramenti esterni in legno con doppi vetri e camera d'aria ad alta efficienza termica e acustica (ristrutturati).
- Oscuri in legno multistrato marino tinta legno naturale ( riverniciati a nuovo);
- Porte interne lisce tamburate e impiallacciate in legno di noce tanganika;
- Sanitari e rubinetterie di design;
- Impianto di riscaldamento autonomo con caldaia esterna;
- Predisposizione di impianto di climatizzazione estiva con n. 2 split;
- Predisposizione di impianto di allarme sia volumetrico che perimetrale;
Le spese condominiali annuali sono m molto contenute pari a circa Euro/anno 74,00 ovvero Euro/mese 6,00 circa.
La sobria eleganza e la sapiente distribuzione degli spazi interni rende questo appartamento unico nel suo genere.
Prezzo Euro 170.000,00
L'appartamento è visitabile tutti i giorni previo appuntamento telefonico.
Per fissare un appuntamento e per eventuali ulteriori chiarimenti o comunicazioni siamo reperibili ai seguenti numeri di telefono:
Tel. Ufficio 0422.397938
Mail info@trevisocasa.it
Visita anche il nostro sito www.trevisocasa.it
Dettagli
- Inserito:
- 28 mag 21:28
- Inserzionista:
- azienda/associazione
- Tipo annuncio:
- vendo
- Tipo merce:
- usato
- Categoria:
- Casa e Terreni
- Comune:
- Ponzano Veneto (TV)
- Superficie:
- 130
- Locali:
- 4
- Bagni:
- 2
- Classe Energetica:
- D
