Descrizione
CENTRALE DI ZUGLIANO: Nuovo appartamento tricamere,garage doppio,giardino,ingresso indipendente. € 280.000
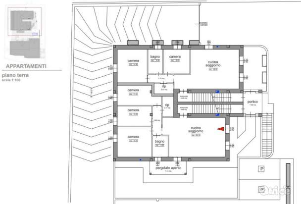
A Centrale di Zugliano proponiamo in vendita un nuovo appartamento tricamere biservizio dotato di garage doppio, taverna, giardino ed ingresso indipendente posto al piano terra di una palazzina residenziale di sole 4 unità. € 280.000 Info 0444.291819.
BUONI MOTIVI PER ACQUISTARE L'IMMOBILE:
- Abitazione nuova e indipendente
- Zona comoda ai servizi e panoramica
- Classe energetica A
- Possibilità di personalizzare le finiture
- Finiture di pregio
ULTIMO DISPONIBILE. In un pregiato contesto residenziale proponiamo tricamere di nuova costruzione.
L'immobile si trova al piano terra, composto da ampia zona giorno molto luminosa, tre camere, due bagni, vano lavanderia, giardino esclusivo e garage doppio.
L'appartamento sarà dotato di tutte le nuove caratteristiche di costruzione e confort tra le quali: riscaldamento a pavimento, tapparelle motorizzate in alluminio coibentate, portone del garage del tipo coibentato motorizzato, impianto fotovoltaico pari a 1,5 kw, predisposizione impianto d'allarme, termostato indipendente per ogni locale interno e predisposizione per la climatizzazione.
Sanitari sospesi, serramenti in pvc con triplo vetro e porte interne bianche.
Possibilità di scelta nelle finiture.
Classe di prestazione energetica A. --- annuncio pubblicato con GESTIONALEIMMOBILIARE.it
Dettagli
- Inserito:
- 2 apr 15:26
- Inserzionista:
- azienda/associazione
- Tipo annuncio:
- vendo
- Tipo merce:
- nuovo
- Categoria:
- Casa e Terreni
- Comune:
- Zugliano (VI)
- Superficie:
- 120
- Locali:
- 3
- Bagni:
- 2
