Descrizione
CORNEDO VICENTINO: in zona tranquilla e residenziale, proponiamo CASA BIFAMILIARE DI NUOVA COSTRUZIONE con ingresso indipendente, giardino e portico privato. Composta da soggiorno e sala da pranzo openspace, angolo cucina separato, tre camere, due/tre bagni, garage doppio,taverna e lavanderia. Contesto di 2 unità abitative. Cl. En. A PREZZO €360.000,00 INFO 0444.291819
BUONI MOTIVI PER ACQUISTARE QUESTO IMMOBILE:
- Soluzione indipendente e di nuova costruzione
- Dotata di giardino privato
- Dotato di garage doppio in larghezza
- Dotato di taverna
- Situata in zona residenziale tranquilla e comoda ai servizi
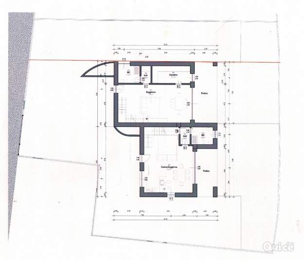
La soluzione di nuova costruzione si sviluppa su due piani fuori terra e un piano seminterrato, con una superficie abitativa di 240,80 mq, giardino di 76,50 mq ed area esterna di 175 mq.
Al piano terra, troviamo un'ampia zona giorno con salotto e sala da pranzo, di 42 mq circa, dalla quale è possibile accedere al portico di quasi 19 mq e al giardino di 76,5 mq. Sempre al piano terra vi è un bagno finestrato preceduto da antibagno.
Salendo le scale, al piano primo ci accoglie la zona notte composta da una camera matrimoniale di quasi 20mq, una camera doppia di più di 15 mq e una di 12 mq . Sempre nello stesso piano troviamo un grande bagno finestrato di circa 10 mq.
Al piano seminterrato, di circa 80 mq, troviamo il garage doppio in larghezza,la lavanderia e vi è la possibilità di ricavare una taverna.
L'immobile presenta una buona esposizione. Si presenta attualmente allo stato di cantiere con la possibilità di personalizzare le finiture interne. L'immobile verrà consegnato totalmente finito e abitabile.
CARATTERISTICHE BREVI
- Nuova costruzione
- Soluzione indipendente
- Tricamere
- 2 bagni
- Portico
- Garage doppio
- Lavanderia
- Taverna
- Giardino privato
IMMAGINI DI PROGETTO E A SCOPO ILLUSTRATIVO --- annuncio pubblicato con GESTIONALEIMMOBILIARE.it
Dettagli
- Inserito:
- 3 apr 15:25
- Inserzionista:
- azienda/associazione
- Tipo annuncio:
- vendo
- Tipo merce:
- nuovo
- Categoria:
- Casa e Terreni
- Comune:
- Cornedo Vicentino (VI)
- Superficie:
- 240
- Locali:
- 4
- Bagni:
- 2
